Property Description

Make your dream home a reality by getting involved in the building process. Depending on the stage of construction, buyers can select upgrades, colors, flooring, cabinetry, countertops, and more to match their personal style. Features include: • Modern open-concept floor plan • Spacious kitchen with customizable finishes • Primary suite with private bath • Energy-efficient construction • Attached garage and ample storage space Enjoy stunning mountain and desert views while living in the charm and history of Virginia City—all just a short drive from Reno and Carson City. This is a rare opportunity to create a home that’s truly yours from the ground up. Contact us today for pricing, timelines, and available customization options—don’t miss out!

Features
: Underground Utilities, Electricity Connected, Sewer Connected, Water Connected, Natural Gas Connected
: S C Street-taylor Street-n Street
: No
Address Map
US
NV
Storey
Virginia City
89440
N
106
0
W120° 21' 18.8''
N39° 18' 29.4''
Neighborhood
Gallagher, Hugh
Virginia City
Virginia City
Additional Info
RidgeNV, LLC
Michael Howard
04-24-2026 17:34:39
Active
04-24-2026
12375
2919-o
04-24-2026
$0
04-24-2026 17:35:18
2
1
$0
001-248-03
$0
$0

Residential Residential

106 N, Virginia City, Nevada 89440

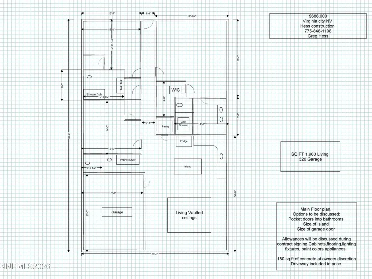
3 Bedrooms
2 Bathrooms
1,960 Sqft
$686,000
Listing ID #260005002
Basic Details
Property Type : Residential
Listing Type : Residential
Listing ID : 260005002
Serial Number : 20260424161153292801000000
Price : $686,000
View : Trees
Bedrooms : 3
Bathrooms : 2
Square Footage : 1,960 Sqft
Year Built : 2026
Lot Area : 0.11 Acre
Status : Active
Agent info
Silver State Homes of Nevada
4600 Kietzke Lane, Ste O-269, Reno, NV 89502
Contact Agent