Property Description

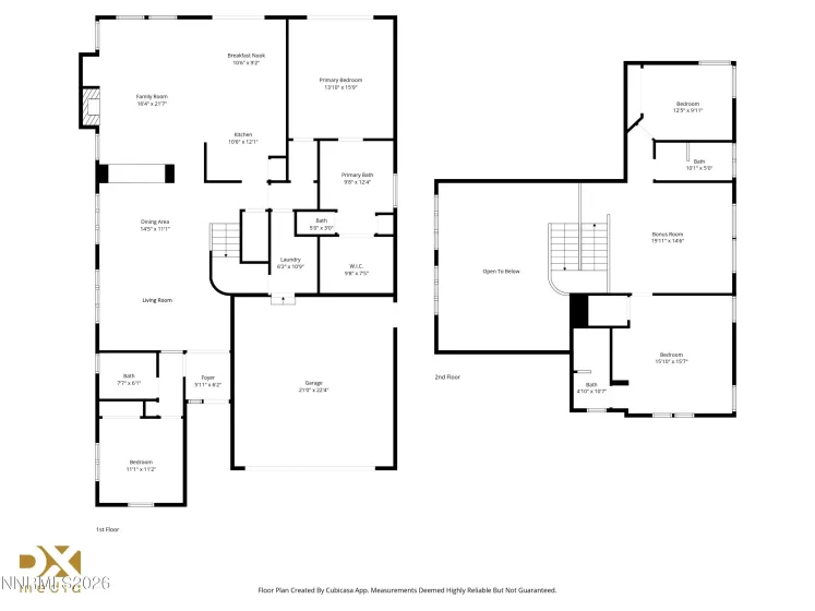
This stunning home with 2861 sq. ft. and 4 bedroom offers 4 full bathrooms including a versatile loft. If you value views and privacy, this home has it all. Each day, enjoy breathtaking views of Red Hawk Golf Course, Mountains, Lake and Valley. The thoughtful design brings in abundant natural light with floor to ceiling windows in family room. Home features a first-floor master with a newly remodeled bathroom with easy access entry. Master suite includes ceiling fan, double sinks, a spacious walk- in closet. First floor features a second bedroom with a hall bathroom. Upstairs, the loft includes a junior master suite with a ceiling fan, walk- in closet, and a fourth bedroom. This home truly lacks nothing. Exterior highlights feature a spacious paver patio with gazebo, lush mature landscaping and a side yard storage shed. The homes front wood exterior was freshly painted in 2025. Newly updated Ac unit in 2024. Additional features include plantation shutters, custom shades, dual zone HVAC an attic fan , and so much more. NEXT – OPEN HOUSE will be 4/18/26 11am-2pm

Features
: Internet Available, Water Meter Installed, Sewer Available, Cellular Coverage, Phone Available, Electricity Connected, Sewer Connected, Water Connected, Cable Connected, Natural Gas Connected
: Vista - R On Wingfield Hill - L On Ambush Ridge To Falcon Ridge
: Rain Gutters
Address Map
US
NV
Washoe
Sparks
Wingfield Springs 21A
89436
Falcon Ridge
2840
0
W120° 18' 31.1''
N39° 35' 49.2''
Neighborhood
Van Gorder
Spanish Springs
Sky Ranch
Additional Info
RE/MAX Gold
Linda Meissen
03-12-2026 21:58:30
Active
03-12-2026
7106
1514-o
03-12-2026
$0
04-19-2026 06:58:19
2
2
$75
520-141-16
$0
$0

Residential Residential

2840 Falcon Ridge, Sparks, Nevada 89436

4 Bedrooms
4 Bathrooms
2,861 Sqft
$769,000
Listing ID #260002773
Basic Details
Property Type : Residential
Listing Type : Residential
Listing ID : 260002773
Serial Number : 20260311220959037810000000
Price : $769,000
View : Trees
Bedrooms : 4
Bathrooms : 4
Square Footage : 2,861 Sqft
Year Built : 2002
Lot Area : 0.19 Acre
Status : Active
Agent info
Silver State Homes of Nevada
4600 Kietzke Lane, Ste O-269, Reno, NV 89502
Contact Agent