Property Description

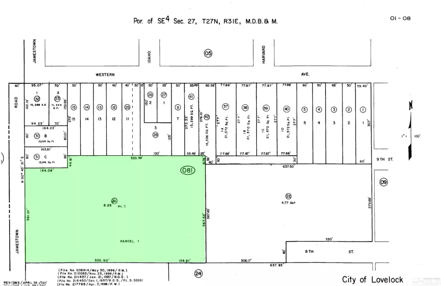
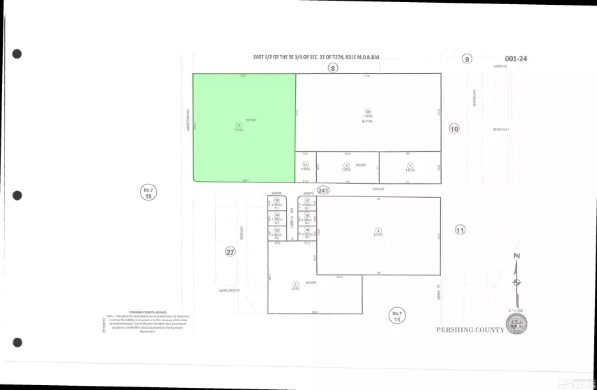
Two adjacent, undeveloped acreage parcels on Jamestown Ave and 6th St within the city limits of Lovelock, NV 89419. Total land area of 13.56+- acres. Surrounding properties are developed–this is an infill project. Water, sewer, natural gas, electric, and phone are present along adjacent street(s) and available for connection. Fencing along some lot lines. Lovely westward views of mountains and sunsets across agricultural fields. 50+ lots appear possible based on current single family residential zoning., DEVELOPER PROJECT: INFILL ACREAGE IN CITY FOR RESIDENTIAL SUBDIVISION Two adjacent, undeveloped acreage parcels on Jamestown Ave and 6th St within the city limits of Lovelock, NV 89419. Total land area of 13.56+- acres. Surrounding properties are developed–this is an infill project. Water, sewer, natural gas, electric, and phone are present along adjacent street(s) and available for connection. Fencing along some lot lines. Lovely westward views of mountains and sunsets across agricultural fields. This is the largest undeveloped acreage property within the City of Lovelock. City is in need of and receptive to new housing. 50+ lots appear possible based on current single family residential zoning. Higher density or alternative uses may be possible with a zoning change. Seller will not separate the parcels; must be purchased together. Pershing County APN’s 001-081-36 and 001-241-09 GPS 40.178169, -118.484406 Directions: I-80 exit 106, go west on Main St, left on Dartmouth Ave, right on 6th St. Property will be on your right, beginning approximately across the street from Rose Way, continuing to the end of the street at Jamestown Ave, and continuing approximately 1000 feet northward on Jamestown Ave to the first existing house.

Features
: Sewer Available, Water Available, None
: Last Property To The Left As You Are Leaving The Little Area Of Stillwater.
Address Map
US
NV
Pershing
Lovelock
89419
Jamestown
0
0
W119° 30' 51.7''
N40° 10' 42.1''
Neighborhood
Lovelock
Pershing
Pershing
Additional Info
Desert Acreage
Robert Kennerson
04-09-2025 03:08:44
Active
04-18-2023
9510
9435-o
04-17-2023
$0
06-26-2025 16:20:59
$0
001-081-36
$0
$0

Land Residential

0 Jamestown, Lovelock, Nevada 89419

13.56 Acre
$1,356,000
Listing ID #230003481
Basic Details
Property Type : Land
Listing Type : Residential
Listing ID : 230003481
Serial Number : 20250409030842914565000000
Price : $1,356,000
View : Trees
Year Built : 0
Lot Area : 13.56 Acre
Status : Active
Agent info
Silver State Homes of Nevada
4600 Kietzke Lane, Ste O-269, Reno, NV 89502
Contact Agent