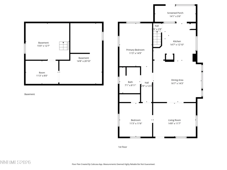
Property Description

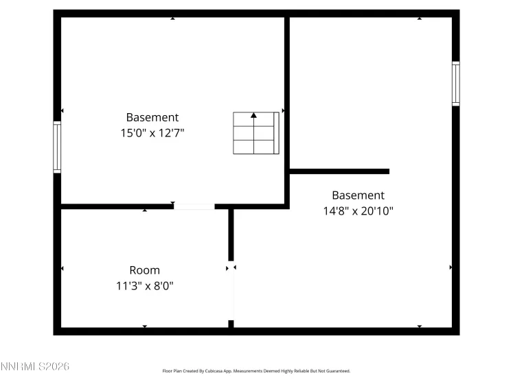
TWO HOMES ON ONE PARCEL! Zoned mixed use downtown, which gives you multiple options: Office, Live/Work, Boutique, Salon. Live in one, or part of one while operating a business and rent the other. The possibilities are endless! Great visibility on the corner of W 2nd and Vine St. Full unfinished basement in one, partial in other. Beautiful vintage homes with lots of charm and architectural character. Recently refreshed with new flooring and paint. Excellent condition and move in ready. For any questions related to zoning contact the city of Reno zoning department.

Features
: Cellular Coverage, Electricity Connected, Sewer Connected, Water Connected, Natural Gas Connected
: No
Address Map
US
NV
Washoe
Reno
Powning Addition
89503
2nd
918
0
W120° 10' 30.9''
N39° 31' 28.4''
Neighborhood
Peavine
Reno
Clayton
Additional Info
Ballard Realty, Inc.
Lori Foster
04-07-2026 17:15:12
Active
04-07-2026
5641
112-o
03-13-2026
$0
04-08-2026 19:41:09
1
$0
011-012-03
$0
$0

Residential Residential

918 2nd, Reno, Nevada 89503

3 Bedrooms
2 Bathrooms
1,864 Sqft
$699,000
Listing ID #260004050
Basic Details
Property Type : Residential
Listing Type : Residential
Listing ID : 260004050
Serial Number : 20260405173530361441000000
Price : $699,000
View : Trees
Bedrooms : 3
Bathrooms : 2
Square Footage : 1,864 Sqft
Year Built : 1930
Lot Area : 0.16 Acre
Status : Active
Agent info
Silver State Homes of Nevada
4600 Kietzke Lane, Ste O-269, Reno, NV 89502
Contact Agent