Property Description

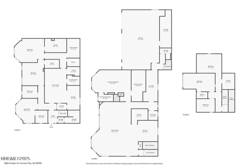
Spectacular scenic mountain views from this unique one-of-a-kind modern European-designed custom home situated on a 1-acre lot in Douglas County with a Carson City address. The Seller is offering a credit to Buyer at the close of escrow. The concrete-paved horse-shoe driveway and garage entry provide plenty of parking for RVs, cars and recreational toys. The home has no rear neighbors, and the lot adjoins BLM land to the west. The neighborhood does not have a Homeowners Association. Designed as a “Nex-Gen” home, with 6 bedrooms, and 4.5 bathrooms on three levels, this home has storage galore with separate rooms, closet organizers, closets and built in cabinets. The main level of the home is finished with a great room, kitchen, walk-in pantry, dining room, laundry room (mud room with sink), and master bedroom all accessible from the 3-car side loading garage at the same level accessed from the southside driveway. The garage has a large shop or storage area in the backroom. The detached storage shed has enough room to park two additional 2 cars. The unique building materials of the home, Integrated Concrete Forms (ICF) with steel reinforcement provide wind and fire resistance, superior insulation and noise reduction. Solar power provides electricity to the home with a gas boiler providing hydronic radiant floor heat throughout the home. Gas fireplaces are in the great room and primary bedroom. Two evaporative coolers provide cooling to the home in the summer months. The home has a private well, connected to self-cleaning carbon filtration system. An oversized septic system and leach field are located downgradient from both the home and well. A 240v/50A power connection on the exterior side of the garage allows for hookup of a backup generator for critical house loads if the new owner wishes to add a generator. The home has another 220-amp outlet on the exterior side of the garage which could be converted for an electric car charger. The construction materials provide both wind and fire resistance. The structure is built with Integrate Concrete Forms (ICF) with steel reinforcement, hydronic radiant heat flooring, solar electricity and water heating with a gas fired boiler back up. Interior finishes include laminate flooring and ceramic tiles on the floors, granite counter tops in the baths and kitchen, and tiled showers and backsplashes. The energy efficiency of this home with onsite utilities (water, solar and septic) equates to very low monthly utility bills for this three level home. The first floor includes 3 bedrooms and 2 baths, a family room, storage room and a kitchenette with a pantry. The second floor includes, a kitchen, a primary bedroom and bath, with a large walk in closet, a half bath, a great room and dining room, and the laundry/mudroom with access from the garage. The third floor includes two bedrooms with walk in closets and a bathroom. The 3-car garage and storage shop includes 1,175 square feet. This unique thoughtfully designed custom built home is in move in condition. Enjoy the low maintenance lot, and energy efficiency that the home construction and utilities provide!

Features
: Internet Available, Cable Available, Electricity Available, Natural Gas Available, Cellular Coverage, Phone Available, Sewer Not Available, Water Not Available, Underground Utilities, Electricity Connected, Internet Connected, Natural Gas Connected
: Us 395, West On Jacks Valley Rd, Rt On Cherokee Dr, Lt On Cindy's Trail
: Rain Gutters, Rv Hookup
Address Map
US
NV
Douglas
Carson City
89705
Cindy's Trail
3662
0
W120° 12' 27.5''
N39° 6' 14.4''
Neighborhood
Jacks Valley
Douglas
Carson
Additional Info
CalNeva Realty
Cheryl Haines
10-10-2025 08:35:25
Active
10-10-2025
10583
1778-o
09-22-2025
$0
01-13-2026 18:25:22
3
3
$0
1419-01-701-004
$0
$0

Residential Residential

3662 Cindy\'s Trail, Carson City, Nevada 89705

6 Bedrooms
5 Bathrooms
5,127 Sqft
$1,250,000
Listing ID #250056874
Basic Details
Property Type : Residential
Listing Type : Residential
Listing ID : 250056874
Serial Number : 20251007205524322584000000
Price : $1,250,000
View : Trees
Bedrooms : 6
Bathrooms : 5
Half Bathrooms : 1
Square Footage : 5,127 Sqft
Year Built : 2010
Lot Area : 1 Acre
Status : Active
Agent info
Silver State Homes of Nevada
4600 Kietzke Lane, Ste O-269, Reno, NV 89502
Contact Agent